5 2

5 bed Chalet - For Sale
Arundel Road, Hartford
Asking Price Of £450,000

  • Detached Property
  • Five Bedrooms
  • Master Bedroom with Walk In Wardrobe
  • Garage and Off Road Parking
  • Wet Room and Family Bathroom
  • Conservatory with Log Burner
  • Enclosed Rear Garden
  • Utility Room
  • Large Summer House
  • No Onward Chain

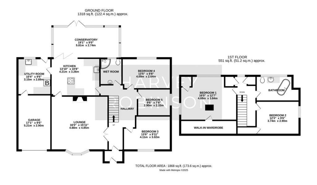
INTRODUCTION Harvey Robinson Estate Agents in Huntingdon are delighted to present this exceptionally well-presented five-bedroom detached property, located on the highly sought-after Arundel Road in Old Hartford, Huntingdon. Immaculately maintained by the current owners, this spacious home offers approximately 1800 sq ft of versatile living accommodation-ideal for modern, flexible lifestyles.

Upon entering, you're greeted by a bright and airy entrance porch leading to a welcoming hallway. The ground floor boasts a generous living room with a charming log burner, a contemporary kitchen with access to a separate large utility room, and a light-filled spacious conservatory featuring a stylish log burner. Further benefits on this level include two double bedrooms, a fifth bedroom currently used as a study and a modern wet room serving these rooms.

Upstairs, a spacious landing with two built-in storage cupboards leads to the impressive master bedroom with a walk-in wardrobe, a further double bedroom, and a beautifully appointed family bathroom.

Externally, the property features ample off-road parking, an integrated single garage, and a well-maintained rear garden complete with established flower beds, a patio area perfect for outdoor entertaining, and a large summer house providing excellent storage.

For further information or to arrange a viewing, please contact our Huntingdon Office.

LOCATION The sought after area of Hartford is located on the edge of central Huntingdon and is popular to a number of different ages due to its amazing transport links and riverside walks. Huntingdon itself is one of Cambridgeshire's best-loved locations. It's famous for being the birthplace of Oliver Cromwell, and there are several historic buildings in and around the town, which give it plenty of character.

In the town itself, you'll find many familiar High Street brands, such as WH Smiths, Boots, TK Maxx and more. There are also some great pubs and restaurants located in the town as well as large supermarkets M&S and Sainsburys.

Towerfields, Huntingdon is located 1.5 miles from the property and offers leisure facilities, gym and further restaurants and fast food facilities.

The property itself is within 2 miles of Huntingdon's Train Station which provides a fast track service into London's King Cross within the hour. Huntingdon's Bus Station is also within less than 2 miles of the property but also there is a bus stop located within 2 minute walk of the property which offers a guided bus service into Cambridge City Centre. Major Road links A1 & A14 are both within easy access.

FAQ Tenure: Freehold
Council Tax: Band D
Property built: 1960
What3Words Location: ///optimally.answer.treaties
Vendors Onwards Movements: No Onward Chain
Boundary: Left Hand Side
Garage: Yes left hand side of property
Water Meter: Yes, Located in back garden in front of utility room
Boiler: Installed 2016, Last serviced 2024
Conservatory: Installed 2015
Windows: Some replaced 2018
Wet Room: Has underfloor heating

Please note we have not tested any apparatus, fixtures, fittings, or services. Interested parties must undertake their own investigation into the working order of these items. All measurements are approximate, and photographs provided for guidance only.

Need to sell your property? Please contact us to arrange your free, no obligation Market Appraisal.

For independent whole of market mortgage advice please call the team to book your appointment.

View all our properties at harveyrobinson.co.uk

Rated Exceptional in Best Estate Agent Guide 2024 & 2025
British Property Awards 2023 & 2024 - Gold Winner
5.0 Star Google Review Rating

Floorplans For Arundel Road, Hartford
EPC For Arundel Road, Hartford
Arrange a viewing for Arundel Road, Hartford

For further details on this property please call us on:
(01480) 45 40 40

Download PDF Arrange Viewing Buying with a mortgage?