3 1

3 bed Semi-Detached Bungalow - Sold Subject to Contract
Silver Birch Avenue, St Ives
Offers In Excess Of £375,000

  • Semi-Detached Bungalow
  • Three Generous Bedrooms
  • Refitted Family Shower Room
  • Impressive Extended Kitchen Diner
  • Single Garage
  • Extensive Off Road Parking
  • Private and Well-Presented Garden
  • Immaculately Presented Throughout
  • Sought After Location
  • Viewing Essential

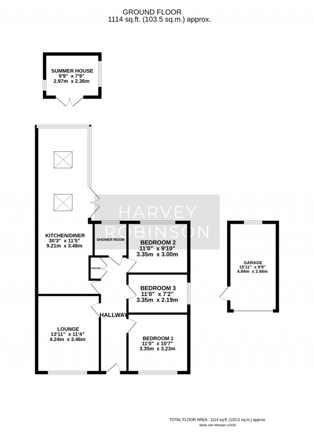
PROPERTY SUMMARY Harvey Robison Estate Agents in St Ives are delighted to offer For Sale this immaculately presented and rarely available semi-detached bungalow within walking distance of the Kings Hedges amenities in St Ives. The bungalow is well designed, with living accommodation and sleeping accommodation separated by a central hallway providing access to all of the rooms. The three bedrooms are all generous in size and are flooded with natural light from the large windows. The refitted family shower room can be found at the end of the corridor and has been fitted in a white three-piece suite with vanity storage and white gloss offset tiling. The living accommodation can be found to the left of the hallway and comprises a generous lounge to the front with feature inset gas fire and an impressive, extended kitchen dining room to the rear. The kitchen is refitted in a cream shaker style unit with laminate worksurfaces over and offers ample appliance space. The extended dining space is the heart of this home. It features dual aspect windows overlooking the rear garden, ceiling light pods and French doors providing access to the outside patio. The garden is larger than average and enjoys an excellent degree of privacy as the property is largely surrounded by other bungalows. There is a recently installed timber summer house with established concrete base to the rear of the garden, a large patio for outdoor dining, and a timber shed for storage. There is a large driveway to the front and side of the property providing ample parking space as well as a single garage with power, light and an up-and-over door. Viewing of this immaculately presented home is essential and can be organised by contacting our St Ives office.

LOCATION AND AMENITIES St Ives is one of Cambridgeshire's best-loved towns. It has a huge amount to offer homebuyers, including a scenic riverside location, plenty of large family properties, and great local amenities, to name just a few. The centre of St Ives is within walking distance as well as the nearest guided bus stop. In St Ives you will find plenty of shops along with some great independent stores and cafes, as well as the river Great Ouse. The pubs are also highly rated by residents, and you'll find plenty of great restaurants in the area. Within half a mile in the opposite direction of town you will find a Morrisons & Aldi supermarket along with various other restaurants.
One of St Ives' biggest draws is its proximity to Cambridge, the A1307 is just two miles from the property and provides easy access into the centre of Cambridge in approximately 20 minutes, in addition the St. Ives Park & Ride terminal is only a five-minute drive away. The nearest station is at Huntingdon, which is just a ten-minute drive away. From here, you can catch a train to London Kings Cross, which takes just over an hour. A popular primary school can also be found within a few minutes' walk of the property.

FAQ'S Tenure: Freehold
Post Code for SatNav: PE27 6TJ
What3Words Location: reach.incensed.area
EPC Rating: D
Council Tax Band: C
Property Constructed: 1960
Utilities: Gas Central Heating, Mains Electricity, Water and Sewerage
Broadband: Fibre to Premises
Current Owners Purchased Property: 6 Years Ago
Seller's Onward Movements: Relocating Closer to Family
Water Meter: Yes
Conservation Area: No
Gas Boiler Replaced: December 2019 and most recently serviced February 2024
UPVC Windows Replaced: 2020
Dining Room Extended: Circa 2008
Loft: Part-Boarded
Primary School Catchment: Wheatfields Primary
Secondary School Catchment: St Ivo Secondary School
Rear Garden Aspect: East

GENERAL Please note we have not tested any apparatus, fixtures, fittings, or services. Interested parties must undertake their own investigation into the working order of these items. All measurements are approximate, and photographs provided for guidance only.

Need to sell your property? Please contact us to arrange your free, no obligation Market Appraisal.

For independent whole of market mortgage advice please call the team to book your appointment.

View all our properties at harveyrobinson.co.uk

Rated Exceptional in Best Estate Agent Guide 2023 & 2024
British Property Awards 2023 & 2024 - Gold Winner
British Property Awards 2024- Silver Winner for the East of England
4.9 Star Google Review Rating

Floorplans For Silver Birch Avenue, St Ives
EPC For Silver Birch Avenue, St Ives
Arrange a viewing for Silver Birch Avenue, St Ives

For further details on this property please call us on:

Download PDF Arrange Viewing Buying with a mortgage?