2 1

2 bed Flat - Sold STC
Sullivan Court, Biggleswade, SG18
Guide Price £220,000

  • SPACIOUS OPEN-PLAN KITCHEN/LOUNGE/DINER
  • JULIETTE BALCONY OFFERING NATURAL LIGHT
  • EASY ACCESS TO A1 & TRAIN STATION TO LONDON
  • IDEAL FOR FIRST-TIME BUYERS OR INVESTORS
  • MODERN BATHROOM SUITE
  • ALLOCATED PARKING SPACE
  • OVERLOOKING CENTRAL SQUARE IN KINGS REACH
  • ACCESS TO SECURE CYCLE STORE
  • TWO DOUBLE BEDROOM SECOND FLOOR APARTMENT
  • CLOSE TO LOCAL AMENITIES & PRIMARY SCHOOLING

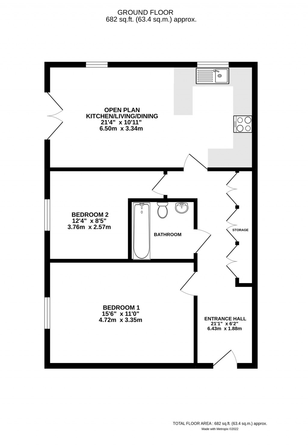
We are delighted to offer for sale this well-presented two double bedroom second-floor apartment, perfectly positioned overlooking Central Square within the sought-after Kings Reach development.

The accommodation briefly comprises a welcoming entrance hall, a spacious open-plan kitchen/lounge/dining area with a Juliette balcony, two generous double bedrooms, and a modern bathroom.

Externally, the property benefits from allocated parking and access to a secure cycle store. 

LOCATION AND AMENITIES
Enjoying a prime position within the popular Kings Reach development, this property benefits from immediate access to a variety of local amenities including a convenience store, takeaway outlets, a barber shop, a community centre, and well-regarded primary schooling.

A retail park offering a wide range of big-brand stores is located within a mile, while Biggleswade town centre-with its selection of shops, popular bars, and restaurants-is also close by. The mainline train station provides fast and direct links to London Kings Cross and St Pancras in under 40 minutes, making this an ideal choice for both first-time buyers and investors alike. 

FAQ'S
Tenure: Leasehold
Property Built: 2017
Council Tax Band: B
Lease Length: 91 out of 99 years remaining
Service Charge including Ground Rent: £685.36
Management Company: Amplius
What3Words Location: ///force.unsettled.cared
Water Meter: Yes
Boiler Installed: 2017
EPC Rating: B 

UTILITIES
Heating: Gas Central Heating
Electricity: Mains
Water: Mains
Sewage: Mains
Broadband: Fibre to Cabinet 

TRAVEL
Distance to A1: 1.7 miles
Biggleswade Railway Station: 2.2 mile
Cambridge: 20.9 miles
Bedford: 13.7 miles
Milton Keynes: 29.6 miles
London: 46.4 miles  

GENERAL Please note we have not tested any apparatus, fixtures, fittings, or services. Interested parties must undertake their own investigation into the working order of these items. All measurements are approximate, and photographs provided for guidance only.

Need to sell your property? Please contact us to arrange your free, no obligation Market Appraisal.

For independent whole of market mortgage advice please call the team to book your appointment.

View all our properties at harveyrobinson.co.uk

Rated Excellent in Best Estate Agent Guide 2022
British Property Awards 2022 - Gold Winner
5.0 Star Google Review Rating
 

Floorplans For Sullivan Court, Biggleswade, SG18
EPC For Sullivan Court, Biggleswade, SG18
Arrange a viewing for Sullivan Court, Biggleswade, SG18

For further details on this property please call us on:

Arrange Viewing Buying with a mortgage?