4 2

4 bed House - Sold STC
Dodimead Way, Biggleswade, SG18
Guide Price £500,000

  • DETACHED FAMILY HOME
  • FOUR BEDROOMS
  • NO ONWARD CHAIN
  • KITCHEN DINING ROOM
  • UTILITY ROOM
  • ENSUITE AND FAMILY BATHROOM
  • STUDY
  • GARAGE AND DRIVEWAY
  • ENCLOSED REAR GARDEN
  • VIEWINGS HIGHLY ADVISED

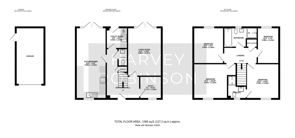
We are delighted to offer for sale this well-presented four-bedroom double-fronted detached family home, ideally positioned within the highly desirable St Andrews development. Built in 2016, the property offers spacious and versatile accommodation comprising an entrance hall, cloakroom, lounge, and an impressive open-plan kitchen/dining room fitted with modern integrated appliances, as well as a utility room and a study to the ground floor. Upstairs, there are four bedrooms including a primary bedroom with en-suite facilities and a contemporary family bathroom.

Outside, the home enjoys a generous enclosed rear garden, a detached single garage with access from the garden, and off-road parking to the front, making this an excellent opportunity for families seeking both comfort and convenience in a sought-after location. 

LOCATION AND AMENITIES
With both Primary and Secondary schooling close by, and local amenities within easy reach, the location offers convenience alongside a sense of community. Beautiful countryside walks are right on your doorstep, including scenic routes leading to the nearby RSPB nature reserve and beyond.

Biggleswade Town Centre is just over a mile away, offering a variety of shops, bars, and restaurants, with further big-brand retail options - including Marks & Spencer - available at the nearby A1 Retail Park. The mainline train station provides fast and direct links into London Kings Cross and St Pancras in under 40 minutes, making it a perfect choice for commuters.  


FAQ'S
Property Constructed: 2016
Rear Garden Aspect: North/East
Council Tax Band: E
Primary School Catchment: St Andrews East
Secondary School Catchment: Edward Peake / Stratton
Annual Estate Maintenance Charge: Circa £300.00 p/a
Water Meter: Yes
Boiler Installed: 2016
Boiler Last Serviced: TBC
EV Charge Point: No
What3Words Location:///good.fight.chugging

SERVICES
Heating: Gas Central Heating
Electricity: Mains
Water: Mains
Sewage: Mains
Broadband: Fibre to premises 

TRAVEL
Distance to A1: 2.1 miles
Biggleswade Railway Station: 1.6 miles
Cambridge: 20.4 miles
Bedford: 12.5 miles
Milton Keynes: 28.5 miles
London: 46.8 miles  

Need to sell your property? Please contact us to arrange your free, no obligation Market Appraisal.

For independent whole of market mortgage advice please call the team to book your appointment.

View all our properties at harveyrobinson.co.uk

Rated Exceptional in Best Estate Agent Guide 2024
British Property Awards 2024 - Gold Winner
Regional Property Awards 2022/23 - Gold Winner
5.0 Star Google Review Rating  

Floorplans For Dodimead Way, Biggleswade, SG18
EPC For Dodimead Way, Biggleswade, SG18
Arrange a viewing for Dodimead Way, Biggleswade, SG18

For further details on this property please call us on:

Arrange Viewing Buying with a mortgage?