4 3

4 bed House - Sold STC
The Range, Eynesbury Hardwicke, PE19
£800,000

  • Four Bedroom Detached
  • Contemporary Design
  • No Onward Chain
  • Large Kitchen/Dining/Lounge Area
  • Open Field Views
  • Garden Studio
  • Plot in Excess of 1/4 Acre
  • 2 En-suite and a Family Bathroom

"The Collection" by Harvey Robinson are delighted to bring to the market this beautifully designed home that is situated on an exclusive development of just 9 homes, boasting countryside views yet being less than a 10-minute drive from St Neots town centre and railway station.
The property was constructed in 2021 to an incredibly high standard and offers buyers a contemporary design that would work well for both families and professionals who seek the convenience of living close to a large, well-served market town but with the countryside on your doorstep.
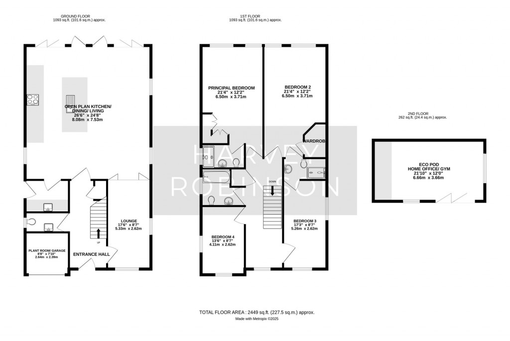
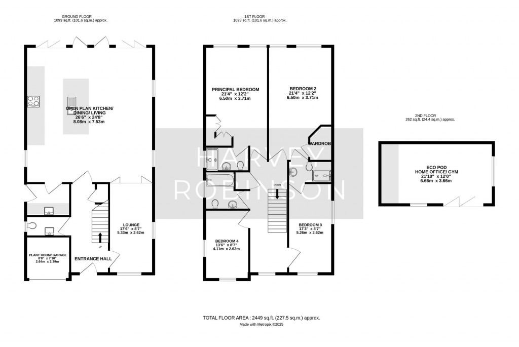
The property features a large welcoming entrance hall with a downstairs cloakroom and ample under stairs storage. From the entrance hall you are immediately drawn to the large open-plan kitchen, dining, and living space that is flooded with natural light from the bi-folding doors and windows across three aspects. The kitchen area has been carefully designed to include a large central island, integrated appliances including a built-in coffee machine, and has mood lighting throughout. The central island allows you to entertain guests whilst cooking, with a comfortable lounge and dining area adjacent. The room enjoys views over the landscaped garden and fields beyond from all angles. There is a convenient utility room coming off the kitchen and an additional lounge/snug area located through a set of double doors from the main living area.
To the first floor there are four double bedrooms with vaulted ceilings and floor to ceiling windows. Bedrooms one and two offer plenty of wardrobe space, bedroom one also benefits from an en-suite. Bedrooms two and three share a stylish Jack and Jill en-suite, with a further family bathroom located on the landing.
The current owners have improved the versatility of the home by building a contemporary garden studio with a green roof which would make an ideal home office, outside bar, or a gym - as it is being used currently. The gardens have also been improved by obtaining an additional strip of land that increases the plot size to in excess of a quarter of an acre (S.T.S). The garden has been thoughtfully landscaped and wherever you are within the garden you can enjoy views over the surrounding countryside.
Planning permission has been granted for a ground floor side extension - details and proposed plans can be found on the HDC planning portal under Reference: 23/01302/HHFUL
The property benefits from an air source heat pump with underfloor heating, super-inverter air conditioning, and solar panels with battery storage. 



FAQ Postcode for SatNav: PE19 6XG
What3Words location: ///grub.headboard.plausible
Tenure: Freehold
Council tax: E
EPC: B
Property built: 2021
Construction: Structural Insulated Panel Construction
Improvements made by the owners: Solar panels & battery fitted in 2023, Garden room installed under Permitted Development in 2024
How long have the owners lived here: Since 2021
Rear boundary responsibility: Left, right & rear
Garden aspect: South/West
Primary catchment: Barnabas Oley C Of E Primary School
Secondary catchment: Longsands
Boiler: Installed 2021, serviced in 2024
EV charging point: Yes
Included in the sale: Solar panels, inverter, battery storage, Air conditioning units throughout
Warranty: Approx 5 years remaining on the new build warranty
Estate maintenance charge: £1300 per annum, including general site maintenance, gardening, lighting & emptying and maintenance of on-site waste water treatment plant.

Please note we have not tested any apparatus, fixtures, fittings, or services. Interested parties must undertake their own investigation into the working order of these items. All measurements are approximate, and photographs provided for guidance only.

Need to sell your property? Please contact us to arrange your free, no obligation Market Appraisal.

For independent whole of market mortgage advice please call the team to book your appointment.

View all our properties at harveyrobinson.co.uk

Rated Exceptional in Best Estate Agent Guide 2024
British Property Awards 2023 - Gold Winner
5.0 Star Google Review Rating

Floorplans For The Range, Eynesbury Hardwicke, PE19
EPC For The Range, Eynesbury Hardwicke, PE19


Arrange a viewing for The Range, Eynesbury Hardwicke, PE19

For further details on this property please call us on:

Arrange Viewing Buying with a mortgage?