3 1

3 bed House - Sold STC
Crane Street, Brampton, PE28
In Excess of £400,000

  • Three Bedroom
  • Detached Family Home
  • Stunning Open Plan Kitchen/Diner/Family Room
  • Corner Plot
  • Garage & Off Road Parking
  • Home Office/Study
  • Enclosed Rear Garden
  • Stunning Condition Throughout
  • Popular Village Location
  • Cloakroom

Harvey Robinson Estate Agents are delighted to present this beautifully modernised and extended three-bedroom detached family home, ideally situated in the highly sought-after village of Brampton.

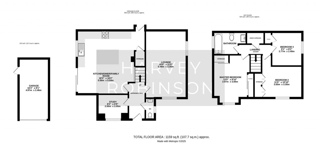
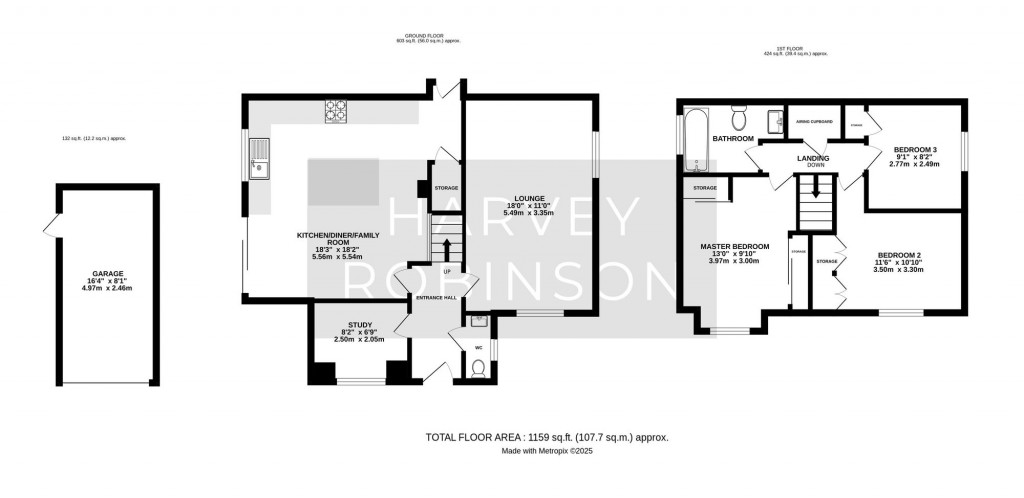
Offering over 1,100 sq. ft. of versatile accommodation (including the garage), the property features a welcoming entrance hall, cloakroom, a dedicated home office/study, a spacious lounge, and a truly impressive open-plan kitchen/dining/family room. With patio doors opening directly onto the rear garden, this space is perfect for both everyday living and entertaining.

Upstairs, the home boasts three generously sized double bedrooms, each with fitted wardrobes, along with a family bathroom.

Externally, the rear garden is attractively brick-enclosed and provides direct access to the garage, with additional off-road parking to the front.

This exceptional home is a must-see to be fully appreciated. For further information or to arrange a viewing, please contact our Huntingdon office today.

LOCATION AND AMENITIES

Located on the edges of Huntingdon, Brampton is a popular village that has a lot to offer people of all ages. Whether you work in and around London or Cambridge and want an escape from the bustle of city life or would prefer to live in a village that has all of the day-to-day amenities you will ever need, Brampton would be the perfect place to move to.

There are some lovely scenic locations to explore in and around Brampton including Brampton Wood Nature Reserve which is the second largest nature reserve in Cambridgeshire covering 132 hectares and providing ample walking and cycle routes with lots of habitat for a variety of wildlife.

Hinchingbrooke Country Park which covers 150 acres of open grasslands, mature woodland and lakes is located at the other end of the Village. It is a great place to visit for families, nature spotters, dog walkers and those who wish to enjoy the great outdoors. There is a mix of play areas, a cafe, hard-surfaced and muddy paths, secluded woodlands and wildflower meadows.

Brampton has a well-regarded primary school and is within catchment for Hinchingbrooke Secondary School located in Huntingdon. The village has excellent local amenities which include a GP surgery, Vets, Dental Practice, two CO-OP stores, golf course, garden centre, two popular pubs both serving food, tea rooms and local shops including a post office, butchers and chemist. Brampton benefits from fantastic transport links via the A14 and A1 as well as being close to the Huntingdon Train Station which has a direct line straight to London Kings Cross & St Pancras, there are also regular Buses into Huntingdon with the bus stop being within a few minutes' walk of the property.

FAQ

Tenure: Freehold

Age of Property: 1986

Council Tax Band: D

Vendors Onward Movements: Upsizing locally

Boundary: Left hand side

Rear Garden Aspect: East

Primary School Catchment: Brampton

Secondary School Catchment: Hinchingbrooke

Water Meter: No

Age of Boiler: 2016, serviced

Loft: Part boarded, light & ladder


Please note we have not tested any apparatus, fixtures, fittings, or services. Interested parties must undertake their own investigation into the working order of these items. All measurements are approximate, and photographs provided for guidance only. Need to sell your property? Please contact us to arrange your free, no obligation Market Appraisal. For independent whole of market mortgage advice please call the team to book your appointment. View all our properties at harveyrobinson.co.uk Rated Exceptional in Best Estate Agent Guide 2024 & 2025 British Property Awards 2023, 2024 & 2025 – Gold Winner 5.0 Star Google Review Rating

Floorplans For Crane Street, Brampton, PE28
EPC For Crane Street, Brampton, PE28
Arrange a viewing for Crane Street, Brampton, PE28

For further details on this property please call us on:

Arrange Viewing Buying with a mortgage?