3 1

3 bed House - Sold STC
West Street, Huntingdon, PE29
£240,000

  • Three Bedroom
  • Three Reception Rooms
  • End of Terraced Home
  • Modernisation Required
  • No Onward Chain
  • Garage
  • Spacious Garden
  • Cloakroom

Harvey Robinson estate agents are pleased to bring to market this three-bedroom end-of-terrace cottage, located on the popular West Street in central Huntingdon. The property offers spacious and flexible accommodation throughout and represents a fantastic opportunity for buyers looking for a project, with modernisation required across the home.

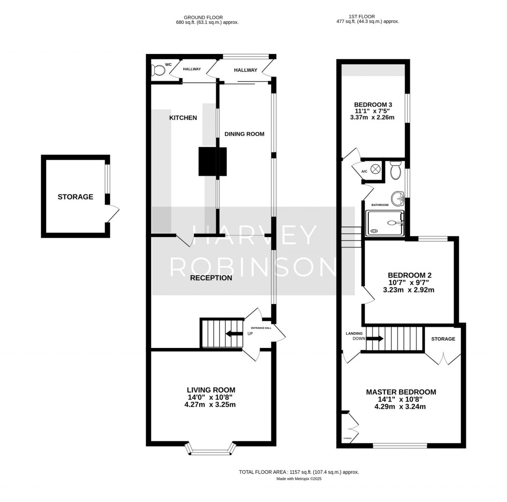
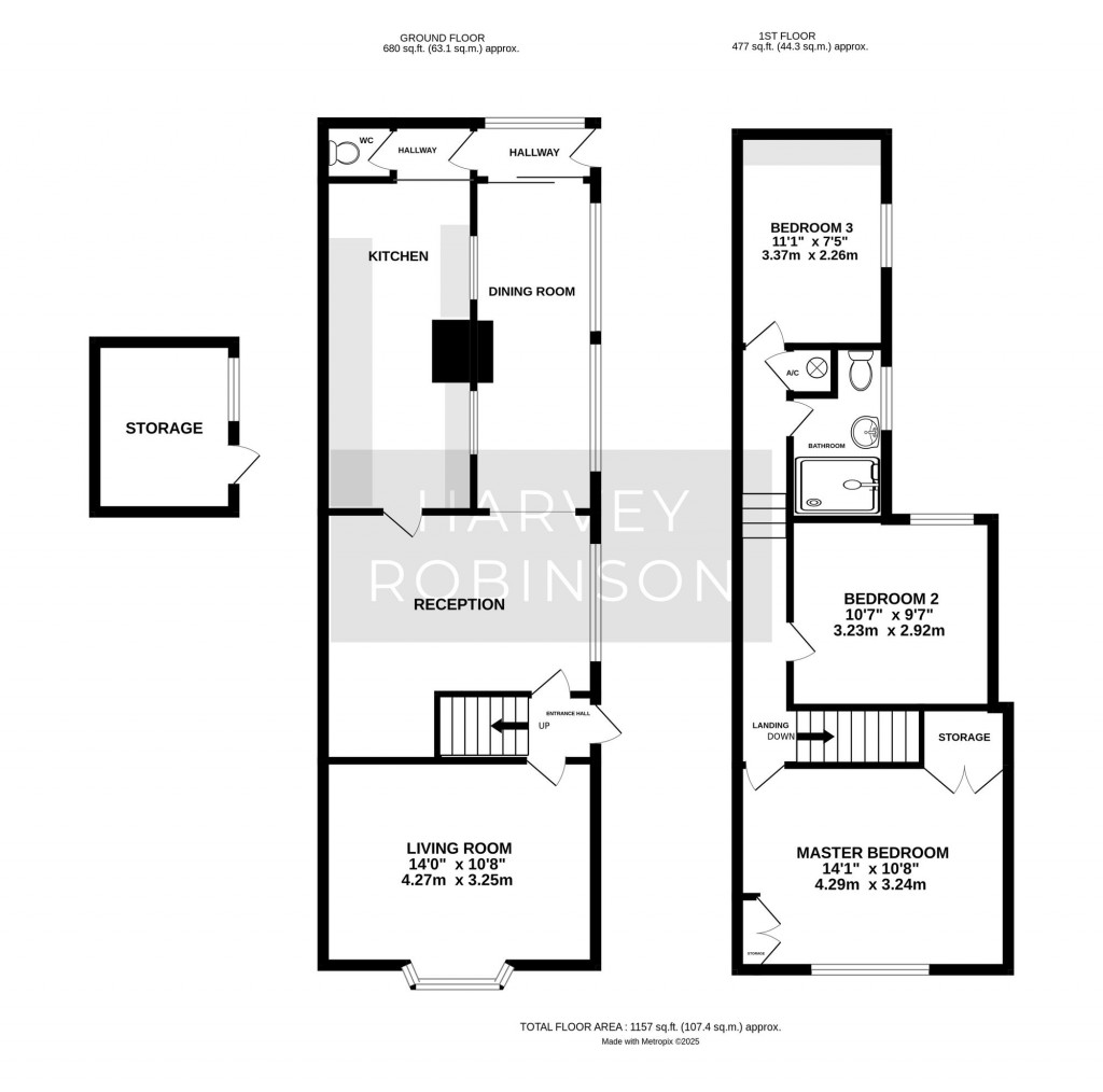
The ground floor comprises three versatile reception rooms, offering scope for a variety of uses including living, dining, home office or playroom space. There is also a separate kitchen and a downstairs WC.

Upstairs, there are three bedrooms and a shower room, providing ample accommodation for families, couples or investors alike.

Externally, the property benefits from a generous rear garden, with a double garage and off-road parking accessed from Cross Street. There is also potential for a building plot to the rear (subject to planning permission), adding further value and future flexibility to the property.

This is a great opportunity for those looking to renovate and put their own stamp on a character property in a central Huntingdon location. To arrange a viewing or find out more, please contact our Huntingdon office.

LOCATION
West Street is ideally positioned in the heart of Huntingdon, one of Cambridgeshire's most sought-after market towns. This historic town is well-known as the birthplace of Oliver Cromwell and retains a wealth of period architecture and charming character. Living on West Street puts you within easy reach of everything Huntingdon has to offer, from independent shops and cafes to larger High Street names including Marks & Spencer, WH Smith, Boots, TK Maxx and Costa.

The area is perfect for a range of lifestyles, whether you're looking for riverside walks along the Great Ouse, a bite to eat in one of the town's many welcoming pubs, or a fine dining experience at The Restaurant and Wine Shop at the renowned Old Bridge Hotel, which is just a short stroll away.

Commuters will appreciate the excellent transport links. Huntingdon train station is just a few minutes' walk from West Street and provides regular services to London King's Cross, making it an ideal base for those needing easy access to London. The nearby central bus station also offers convenient guided services into Cambridge and the surrounding areas.

FAQS

Tenure: Freehold
Council Tax Band: C
Vendors Onward Movements: No chain
What3Words: ///bolts.bookings.financial
Age of Property: Approx. 1900-1929
Rear Aspect: North East
Loft: Light connected

Please note we have not tested any apparatus, fixtures, fittings, or services. Interested parties must undertake their own investigation into the working order of these items. All measurements are approximate, and photographs provided for guidance only.

Need to sell your property? Please contact us to arrange your free, no obligation Market Appraisal.

For independent whole of market mortgage advice please call the team to book your appointment.

View all our properties at harveyrobinson.co.uk

Rated Exceptional in Best Estate Agent Guide 2024 & 2025

British Property Awards 2023 & 2024 – Gold Winner

5.0 Star Google Review Rating

Floorplans For West Street, Huntingdon, PE29
EPC For West Street, Huntingdon, PE29
Arrange a viewing for West Street, Huntingdon, PE29

For further details on this property please call us on:

Arrange Viewing Buying with a mortgage?