4 2

4 bed House - For Sale
Grasmere, Huntingdon, PE29
£450,000

  • Four Bedroom Detached Family Home
  • Immaculate Presentation Throughout
  • Two Reception Rooms and a Sun Room
  • Fantastic Transport Links
  • Ensuite To Master
  • Close To Local Amenities
  • Early Viewing Advised

INTRODUCTION

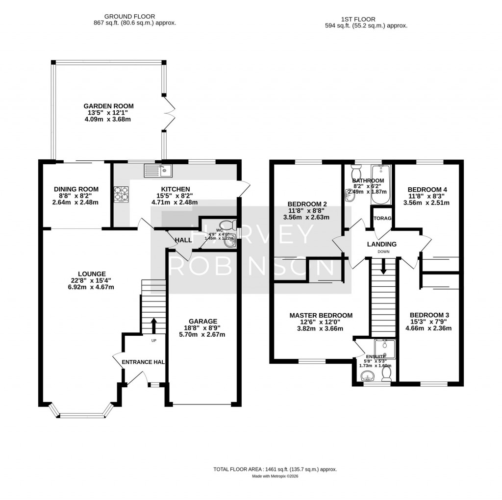
Harvey Robinson Estate Agents in Huntingdon are delighted to present this immaculately presented four-bedroom detached family home. Situated in the highly sought-after area of Stukeley Meadows, this beautifully maintained property offers spacious and versatile accommodation, perfectly suited to modern family living.

The ground floor welcomes you with an inviting entrance hall, leading through to a generous living room featuring a striking log burner, alongside a separate dining room. This flows seamlessly into an additional reception room overlooking the garden, enjoying an abundance of natural light. The ground floor further benefits from a well-appointed kitchen, a convenient W/C, and internal access to the garage.

Upstairs, the property offers four well-proportioned bedrooms, including a spacious principal bedroom complete with an en-suite, as well as a contemporary family bathroom.

Externally, the home boasts a private, enclosed rear garden with low-maintenance artificial lawn and a stylish composite decking area, ideal for both relaxing and entertaining. The property also benefits from an integral garage and a driveway providing ample off-road parking.

LOCATION

Stukeley Meadows is a highly sought after residential area within Huntingdon, ideally positioned close to a wide range of local amenities.

Huntingdon town centre is just a short drive away and offers an excellent selection of shops, a library, veterinary practices, and GP surgeries. A convenient walkway located at the end of Lake Way provides a shortcut to Huntingdon Train Station, which is approximately a 15 minute walk from the property. This makes the location ideal for commuters, with direct rail services to London King’s Cross taking around one hour.

For everyday shopping, supermarkets including Aldi and Lidl are both within a 15-minute walk of the property, while a Tesco Metro is also conveniently located on the estate.

The property also benefits from excellent transport links, with the A14 and A1 both easily accessible.

Stukeley Meadows falls within the popular school catchment areas for Stukeley Meadows Primary School and St Peter’s Secondary School. With amenities, transport links, and schools all close by, the estate offers a convenient and well-connected location for families and professionals alike.

FAQ

Tenure: Freehold
Vendor: Owned since 2004, Looking to downsize
Council Tax: E
Loft: Boarded
Garden: South Facing
Boundary: Left hand side
Primary School Catchment: Stukeley Meadows
Secondary School Catchment: St Peters
Water Meter: Yes
Boiler: 5 Years Old, last serviced Jan 26
WhatThreeWords: ///tumble.desks.pampering

These particulars are for guidance only and do not form part of any contract. Descriptions, dimensions and references to condition are given in good faith but should not be relied upon as statements of fact. Measurements and floorplans are approximate. Services, systems and appliances have not been tested and no warranty is given. The property is offered subject to contract and availability. Purchasers must provide identification in accordance with Anti-Money Laundering regulations; a fee of £18 (incl. VAT) per purchaser is payable to Landmark Property services for each electronic verification check. We may receive a referral fee for any of our recommended service providers.

Need to sell your property? Please contact us to arrange your free, no obligation Market Appraisal.

For independent whole of market mortgage advice please call the team to book your appointment.

View all our properties at harveyrobinson.co.uk

Rated Exceptional in Best Estate Agent Guide 2024 and 2025

British Property Awards 2023, 2024 and 2025 – Gold Winner

British Property Awards 2025 Regional Silver Winner in East of England

4.9 Star Google Review Rating

Floorplans For Grasmere, Huntingdon, PE29
EPC For Grasmere, Huntingdon, PE29
Arrange a viewing for Grasmere, Huntingdon, PE29

For further details on this property please call us on:

Arrange Viewing Buying with a mortgage?