3 2

3 bed Town House - Sold STC
Chamberlain Park, Biggleswade, SG18
Guide Price £385,000

  • THREE BEDROOMS
  • ACCOMMODATION OVER THREE FLOORS
  • ENSUITE, CLOAKROOM AND BATHROOM
  • OPEN-PLAN LIVING
  • INTEGRATED APPLIANCES
  • ENCLOSED REAR GARDEN
  • GARAGE AND PARKING
  • BEAUTIFULLY PRESENTED THROUGHOUT
  • CLOSE TO LOCAL AMENITIES
  • VIEWINGS HIGHLY RECOMMENDED

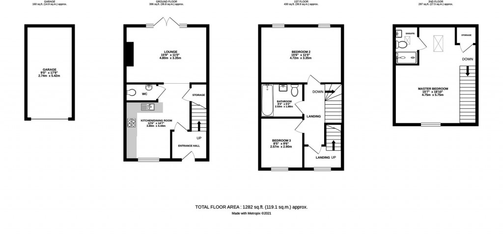
We are delighted to present this beautifully maintained three double bedroom terraced family home, situated within the highly popular and sought-after Kings Reach development. Built by Taylor Wimpey in 2014 to the well-regarded ‘Dunton’ design, the property offers spacious and versatile accommodation arranged over three floors.

The ground floor comprises a welcoming entrance hall, cloakroom, a modern kitchen/dining room, and a generously sized lounge, ideal for both family living and entertaining. On the first floor are two double bedrooms and a contemporary family bathroom, while the second floor is dedicated to an impressive master bedroom suite complete with ensuite shower room.

Externally, the property benefits from an enclosed, landscaped rear garden, along with a leasehold garage and parking to the front.

Ideally located just a short distance from Central Square, residents can enjoy a range of local amenities including a convenience store, barber shop, newly opened café, takeaway outlets, primary school, community centre, and nearby play parks. This superb home offers an excellent opportunity for families seeking a modern property in a thriving community.

LOCATION AND AMENITIES
The property is located a short walk from Central Square, providing easy access to all the main amenities on the Kings Reach development. There is a convenience store, primary school, community centre and café nearby, along with play parks and open green spaces, making it a great area for families.

Biggleswade town centre is just over a mile away and offers a good range of shops, supermarkets, bars and restaurants. The nearby A1 Retail Park includes larger stores such as Marks & Spencer, Next and Boots.

For commuters, Biggleswade train station provides direct services to London Kings Cross and St Pancras in under 40 minutes, and the A1 offers convenient road links north and south.

This property offers a quiet residential setting with good access to local facilities and transport connections.

FAQ'S
Property Tenure: Freehold
Garage Tenure: Leasehold
Council Tax Band: D
Garden facing: West
Boiler Installed: 2018
Boiler serviced: April 2025
Primary School Catchment: St Andrews East
Secondary School Catchment: Edward Peake / Stratton
EPC Rating: TBC
What3Words Location: ///entrusted.excavate.nozzles

SERVICES
Heating: Gas Central Heating
Electricity: Mains
Water: Mains
Sewage: Mains
Broadband: Fibre to premises

TRAVEL
Distance to A1: 1.9 miles
Biggleswade Railway Station: 1.2 Walking Distance
Cambridge: 21.0 miles
Bedford: 13.4 miles
Milton Keynes: 29.7 miles
London: 46.5 miles 


Need to sell your property? Please contact us to arrange your free, no obligation Market Appraisal.

For independent whole of market mortgage advice please call the team to book your appointment.

View all our properties at harveyrobinson.co.uk

5.0 Star Google Review Rating
Rated Excellent in Best Estate Agent Guide 2025
British Property Awards 2025 – Gold Winner
Rated Exceptional in Best Estate Agent Guide 2024
British Property Awards 2024 - Gold Winner
Regional Property Awards 2022/23 - Gold Winner

Floorplans For Chamberlain Park, Biggleswade, SG18
EPC For Chamberlain Park, Biggleswade, SG18
Arrange a viewing for Chamberlain Park, Biggleswade, SG18

For further details on this property please call us on:

Download PDF Arrange Viewing Buying with a mortgage?