3 2

3 bed Bungalow - For Sale
Chapel Road, Earith, PE28
In Excess of £400,000

  • Detached Bungalow
  • Three Generous Bedrooms
  • 27ft Kitchen Diner
  • Refitted Throughout
  • Off-Road Parking
  • Spacious Single Garage
  • South Facing Garden
  • Sought After Village Location
  • Immaculately Presented Inside
  • Viewing Essential

PROPERTY SUMMARY

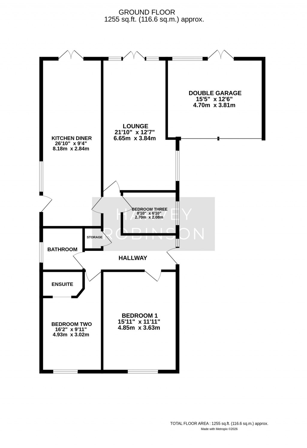
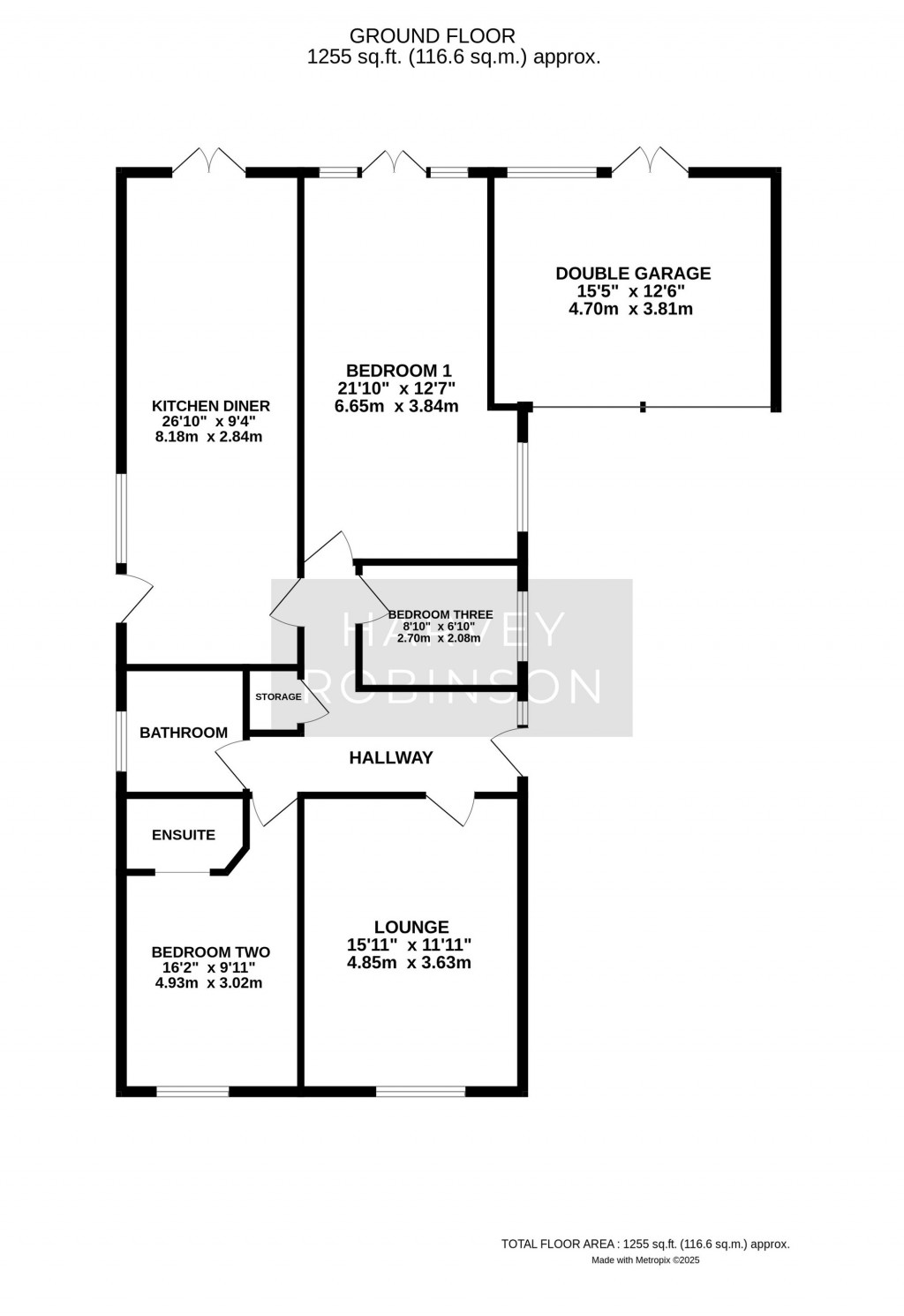
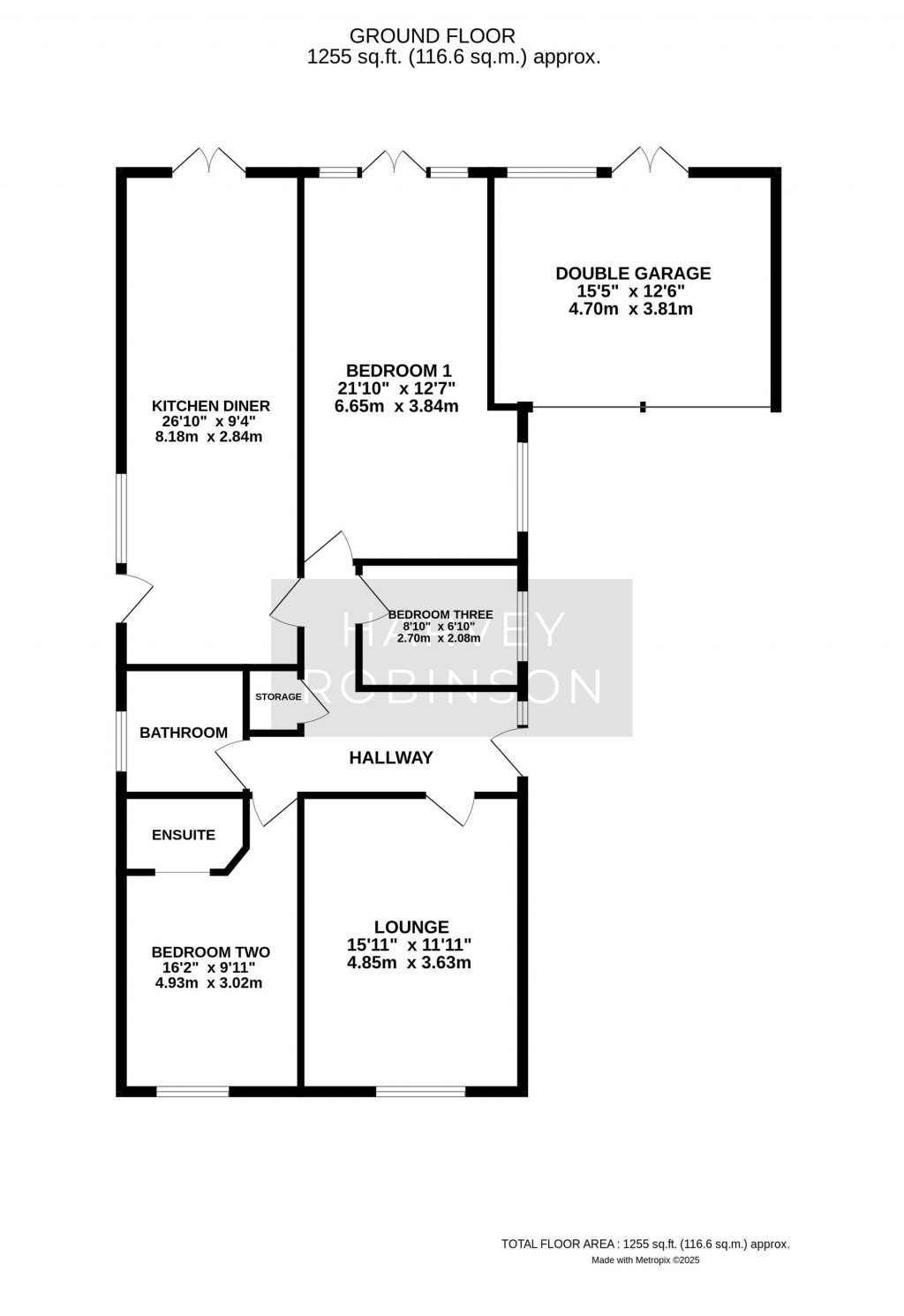
Harvey Robinson Estate Agents are delighted to present for sale this detached bungalow, nestled in the ever-popular village of Earith. Situated on a one-way road parallel to the high street, this property in brief comprises an entrance hallway, a front-facing lounge, three generous bedrooms - two doubles, one with en suite, and a further single room - a well-presented three-piece family bathroom, and a stunning 27ft (approx) kitchen diner to the rear. The property has been refitted recently, and features a cohesive herringbone kardean flooring throughout the living accommodation and hallway, as well as feature red countertops in the kitchen. Externally the property benefits from ample driveway space for off-road parking of multiple vehicles, access to the spacious single garage, gated access to the rear garden, and privacy from the road by being set back by a small lawned front garden. The condition of this bungalow means it is ready to move into, and would be perfect for families or anyone looking to downsize. Viewings of this rarely-available property are expected to be high, so to avoid disappointment contact the St Ives office to arrange. 


FAQ'S

Tenure: Freehold
Post Code for SatNav: PE27 3PU
What3Words Location: zaps.single.theory
Owned For: 13 Years
Seller's Onward Movements: Relocating out of area
EPC Rating: C
Council Tax Band: D
Heating Type: Gas Central Heating
Utilities: Mains Electric, Mains Water, Mains Sewage
Broadband: Fibre to Premises
Primary School Catchment: Earith Primary School
Secondary School Catchment: St Ivo Secondary School, Abbey College Ramsey
Conservation Area: No
Rear Garden Aspect: South
Rear Garden Boundary: Back
Water Meter: Yes
Boiler Installed: 2024, with installation log book
Boiler Serviced: July 2025, with service certificate
UPVC Windows: 2013
Loft Ladder: Part-boarded, with light and loft ladder 

GENERAL

Please note we have not tested any apparatus, fixtures, fittings, or services. Interested parties must undertake their own investigation into the working order of these items. All measurements are approximate, and photographs provided for guidance only.

Need to sell your property? Please contact us to arrange your free, no obligation Market Appraisal.

For independent whole of market mortgage advice please call the team to book your appointment.

View all our properties at harveyrobinson.co.uk

Rated Exceptional in Best Estate Agent Guide 2023 & 2024
British Property Awards 2023 & 2024 - Gold Winner
British Property Awards 2024- Silver Winner for the East of England
4.9 Star Google Review Rating 

Floorplans For Chapel Road, Earith, PE28
Arrange a viewing for Chapel Road, Earith, PE28

For further details on this property please call us on:

Arrange Viewing Buying with a mortgage?