3 2

3 bed House - Sold STC
Planets Way, Biggleswade, SG18
Guide Price £335,000

  • THREE BEDROOMS
  • LANDSCAPED REAR GARDEN
  • KITCHEN / DINING ROOM
  • MID TERRACED HOME
  • GARAGE AND ALLOCATED PARKING
  • INTEGRATED KITCHEN APPLIANCES
  • VIEWINGS HIGHLY ADVISED
  • CHAIN FREE
  • CLOSE TO AMENITES
  • ENSUITE AND CLOAKROOM

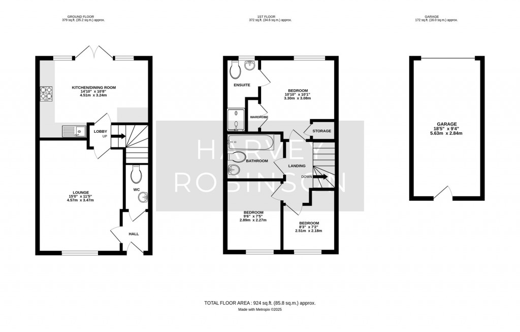
Offered with no onward chain, this beautifully presented three-bedroom mid-terraced home is situated in the highly sought-after Kings Reach development in Biggleswade, offering modern living in a well-connected and family-friendly location.

The ground floor welcomes you with a spacious entrance hall, leading to a convenient cloakroom, a bright and comfortable lounge, and a generously sized kitchen/dining room. The kitchen is fitted with sleek integrated appliances, providing both style and practicality-ideal for everyday living and entertaining.

Upstairs, the property offers three well-proportioned bedrooms. The principal bedroom features built-in wardrobes and a private en-suite shower room, while the remaining two bedrooms are served by a contemporary family bathroom.

Outside, the rear garden has been tastefully landscaped and is fully enclosed, offering a private and low-maintenance outdoor space. A rear gate provides access to the allocated parking, and there is direct access from the garden into the garage, adding extra convenience and functionality. To the front, the home benefits from a generous garden laid with astro turf, enhancing curb appeal and ease of upkeep.

This is a fantastic opportunity to acquire a stylish and well-maintained property in a prime location, perfect for families, professionals, or investors alike. Early viewing is highly recommended. 

LOCATION AND AMENITIES
Conveniently located just a short walk from Central Square, the property is close to a range of local amenities including a convenience store, primary school, community centre, and a popular café-making it a perfect choice for families. Biggleswade town centre is just over a mile away, offering a variety of shops, bars, and restaurants, with additional big-brand shopping available at the nearby Retail Park. For commuters, the mainline train station provides direct access to London Kings Cross in under 40 minutes.

Viewings are highly recommended and can be arranged by contacting our Biggleswade office.  

FAQ'S
Tenure: Freehold
Property Constructed: 2014
Council Tax Band: D
Rear Garden Aspect: West
Garage: Power and light
Primary School Catchment: St Andrews East
Secondary School Catchment: Stratton / Edward Peake
What3Words:///snug.gymnasium.simple

SERVICES
Heating: Gas Central Heating
Electricity: Mains
Water: Mains
Sewage: Mains
Broadband: Fibre to Premises  

TRAVEL
Distance to A1: 1.5 miles
Biggleswade Railway Station: 2.0 miles
Cambridge: 20.7 miles
Bedford: 13.6 miles
Milton Keynes: 31.0 miles
London: 46.1 miles  

GENERAL
Please note we have not tested any apparatus, fixtures, fittings, or services. Interested parties must undertake their own investigation into the working order of these items. All measurements are approximate, and photographs provided for guidance only.

Need to sell your property? Please contact us to arrange your free, no obligation Market Appraisal.

For independent whole of market mortgage advice please call the team to book your appointment.

View all our properties at harveyrobinson.co.uk

Rated Exceptional in Best Estate Agent Guide 2024
British Property Awards 2024 - Gold Winner
Regional Property Awards 2022/23 - Gold Winner
5.0 Star Google Review Rating
 

Floorplans For Planets Way, Biggleswade, SG18
EPC For Planets Way, Biggleswade, SG18
Arrange a viewing for Planets Way, Biggleswade, SG18

For further details on this property please call us on:

Arrange Viewing Buying with a mortgage?