5 3

5 bed House - Sold STC
Corona Road, Cambridge, CB4
£550,000

  • Four Storey Victorian Townhouse
  • Converted into 3 Apartments
  • Access to Cambridge and Science Park
  • Cash Purchasers only
  • Sold with Tenants in Situ
  • Garden and Garage
  • Rental Investment Opportunity
  • No Onward Chain
  • Allocated Parking Space
  • Viewing Highly Recommended

PROPERTY SUMMARY

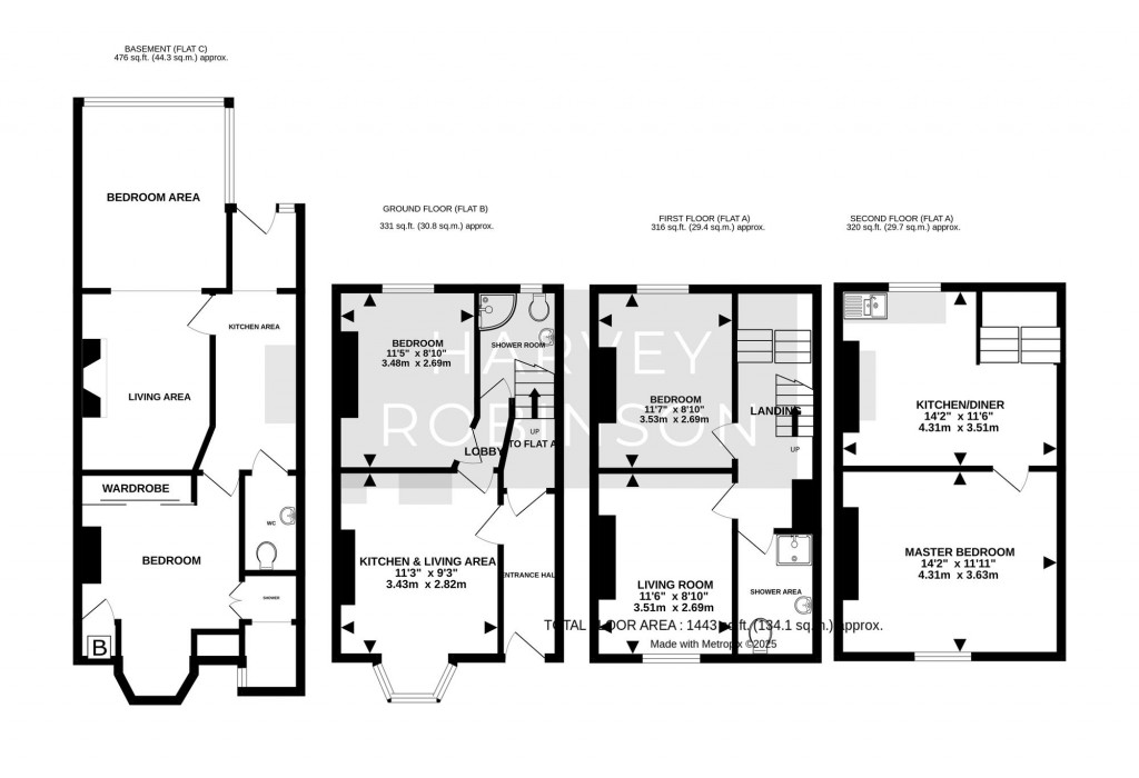
Harvey Robinson Estate Agents are delighted to offer this substantial four storey Victorian townhouse, converted into three self-contained apartments and presented as a ready-made investment opportunity. With tenants in situ and no onward chain, the property provides an immediate rental income and excellent long-term potential. The accommodation is thoughtfully arranged across four floors, with each dwelling benefitting from its own kitchen, and independent heating system. The ground floor apartment offers two double bedrooms, a living space, and the rare advantage of a large private garden, together with direct access to a garage and a private parking space. On the first floor, the apartment comprises a generous one-bedroom layout with a separate bedroom, shower room, and an open-plan lounge/kitchen/dining area. The first and second floors are home to a spacious two-bedroom apartment, featuring two double bedrooms, alongside a separate kitchen/diner, lounge, and shower room. In addition to the garage and private parking, the property also benefits from permit parking available on Corona Road and the surrounding streets as part of the Victoria Resident Parking Scheme, further enhancing its appeal for both residents and investors.

FAQ

Tenure: Freehold (the whole building)

Onward Movements: No Forward Chain. Sold with tenants in situ

Rear Garden: East Facing

Primary School: Milton Road Primary School

Secondary School: Chesterton Community College

Council Tax: Band A for Flats B & C / Band C for Flat A

Water Meter: Yes

Current Rental income: £2850pcm

Potential Rental Income: £3750 - £4250pcm

EPC:

Flat A (First and Second Floor): D (60/79)

Flat B (Ground Floor): C (60/76)

Flat C (Basement): C (78/78)

Heating:

Flat A (First and Second Floor): Gas Boiler with radiator heating

Flat B (Ground Floor): Electric Immersion Heater with electric panel heaters.

Flat C (Basement): Gas Boiler with radiator heating

Landlords Gas safety certificate last done this year.

GENERAL

Please note we have not tested any apparatus, fixtures, fittings, or services. Interested parties must undertake their own investigation into the working order of these items. All measurements are approximate, and photographs provided for guidance only.

We are aware that there is no building regulations certificates sought for the conversion into three dwellings and so would need to be a cash purchase. Clients are advised to make their own enquiries on this and take legal advice before proceeding with a purchase.

Need to sell your property? Please contact us to arrange your free, no obligation Market Appraisal.

For independent whole of market mortgage advice please call the team to book your appointment.

View all our properties at harveyrobinson.co.uk

Rated Exceptional in Best Estate Agent Guide 2024

British Property Awards 2023 & 2024 - Gold Winner

5.0 Star Google Review Rating

Floorplans For Corona Road, Cambridge, CB4
Arrange a viewing for Corona Road, Cambridge, CB4

For further details on this property please call us on:

Arrange Viewing Buying with a mortgage?