3 2

3 bed House - Sold STC
Ambury Hill, Huntingdon, PE29
Guide Price £325,000

  • Three Bedroom
  • Semi Detached Home
  • Open Plan Kitchen/Breakfast Room
  • 17ft Lounge
  • Great Sized Plot
  • Family Bathroom & Shower Room
  • Well Presented Throughout
  • Additional 14ft Family Room/Dining Room

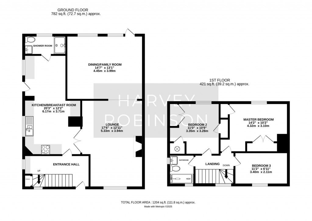
*GUIDE PRICE £325,000 - £350,000*Harvey Robinson Estate Agents in Huntingdon are delighted to present this well-appointed and spacious three-bedroom semi-detached home, located on Ambury Hill, Huntingdon. Boasting over 1,200 sq ft of thoughtfully extended living space, this property offers a perfect blend of style, comfort, and versatility.The ground floor features a welcoming entrance hall, a spacious and extended 20ft open-plan kitchen/breakfast room, and a convenient ground floor shower room. The 17ft lounge flows seamlessly into a versatile family/dining room, ideal for both everyday living and entertaining. Upstairs, the property offers two generous double bedrooms, a spacious single bedroom, and a modern, refitted family bathroom. Externally, the home is set on a generous South/West facing plot, perfect for enjoying sunny summer evenings in the garden. This is a must-see property to fully appreciate everything it has to offer.

Floorplans For Ambury Hill, Huntingdon, PE29
EPC For Ambury Hill, Huntingdon, PE29
Arrange a viewing for Ambury Hill, Huntingdon, PE29

For further details on this property please call us on:

Arrange Viewing Buying with a mortgage?