3 1

3 bed Bungalow - Sold STC
Meadow Lane, Earith, PE28
£345,000

  • Detached Bungalow
  • Three Bedrooms
  • Two Reception Rooms
  • 20ft Lounge
  • Separate Kitchen Diner
  • In Need Of Modernisation
  • Private South Facing Garden
  • Sought After Location
  • Viewing Essential
  • Off-Road Parking and Single Garage

PROPERTY SUMMARY

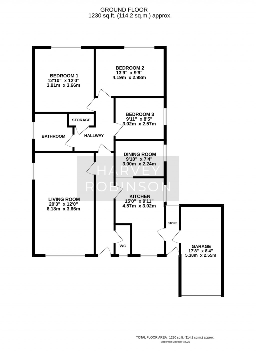
Harvey Robinson Estate Agents are delighted to present for sale this rarely available three-bedroom detached bungalow in the highly sought after village of Earith. Set back from the road with a generous frontage and off-road parking, the property in brief comprises an entrance hallway leading to a spacious front-facing living room, a generous kitchen that opens into the dining area and a handy W/C to the front of the property. To the rear of the property you will find two generous double bedrooms, a further good sized single bedroom which could also double as a handy office or snug space, and a spacious bathroom complete with a white three-piece suite. Externally, the property offers a generous south facing rear garden with a good degree of privacy, as well as a single garage with up-and-over door to the front. Viewings of this fantastic renovation opportunity are essential to truly appreciate the space on offer, and can be arranged by contacting the St Ives office. 


FAQS

Tenure: Freehold
Post Code for SatNav: PE28 3QE
What3Words Location: ///imprinted.glider.peroxide
Conservation Area: No
Heating Type: Gas Central Heating
Seller's Onward Movements: No Forward Chain
Rear Garden Aspect: East
Primary School Catchment: Earith Primary School
Secondary School Catchment: Abbey College Ramsey
EPC Rating: D 

GENERAL

Please note we have not tested any apparatus, fixtures, fittings, or services. Interested parties must undertake their own investigation into the working order of these items. All measurements are approximate, and photographs provided for guidance only.

Need to sell your property? Please contact us to arrange your free, no obligation Market Appraisal.

For independent whole of market mortgage advice please call the team to book your appointment.

View all our properties at harveyrobinson.co.uk

Rated Exceptional in Best Estate Agent Guide 2023 & 2024
British Property Awards 2023 & 2024 - Gold Winner
British Property Awards 2024- Silver Winner for the East of England
4.9 Star Google Review Rating  

Floorplans For Meadow Lane, Earith, PE28
EPC For Meadow Lane, Earith, PE28
Arrange a viewing for Meadow Lane, Earith, PE28

For further details on this property please call us on:

Arrange Viewing Buying with a mortgage?