2 1

2 bed House - For Sale
Cowper Road, Huntingdon, PE29
In Excess of £250,000

  • Two Bedroom Semi Detached Home
  • Well Presented Throughout
  • Off Road Parking
  • Generous Enclosed Rear Garden
  • 5 Minute Walk from Town Centre
  • Fantastic Transport Links
  • Cloakroom
  • Air conditioning

INTRODUCTION

Harvey Robinson are delighted to offer for sale this well-presented two-bedroom semi-detached home, conveniently located within walking distance of Huntingdon Town Centre.

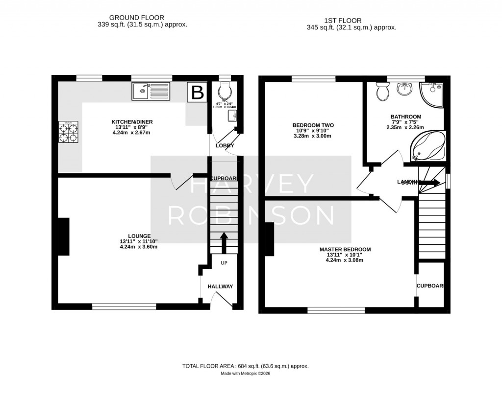
The accommodation briefly comprises a welcoming entrance hall and a bright, inviting lounge featuring a charming log burner and a large window that allows ample natural light to flood the room, creating a warm and comfortable living space. To the rear, the spacious kitchen/diner overlooks the garden, providing a pleasant outlook while cooking or entertaining, and is complemented by a convenient cloakroom. There is also useful understairs storage, offering space for white goods or additional household storage.

Upstairs, the property offers two well-proportioned double bedrooms. The main bedroom spans the full width of the front of the house and benefits from built-in storage, providing both generous proportions and practicality. The second bedroom is a versatile space, ideal as a home office or study, while still offering ample room to accommodate a double bed if required. The spacious family bathroom, fitted with a four-piece suite, completes the upstairs accommodation.

The home has been thoughtfully updated throughout by the current owners, including windows replaced just two years ago, the installation of air conditioning for year-round comfort, and the conversion of the front garden into a driveway providing valuable off-road parking.

Externally, the property truly stands out. To the rear is a very spacious, enclosed garden featuring a stunning patio area that beautifully captures the sun- perfect for relaxing or entertaining during the summer months.

Ideally situated just a five-minute walk from the town centre, which offers a wide range of amenities, shops, and facilities, this well-presented home would make an ideal first-time purchase or investment opportunity. For further information or to arrange a viewing, please contact Harvey Robinson Estate Agents in Huntingdon.

LOCATION

Huntingdon is one of Cambridgeshire’s most popular and well-loved market towns. Famous as the birthplace of Oliver Cromwell, the town boasts a wealth of historic buildings in and around the centre, which add to its charm and character.

The area appeals to people of all ages thanks to its excellent local amenities, attractive riverside walks, and strong sense of community. Huntingdon town centre offers a wide range of familiar High Street brands, including Marks & Spencer, WHSmith, Boots, TK Maxx, and many more. There is also a great selection of pubs and restaurants, with The Restaurant and Wine Shop at the Old Bridge Hotel being particularly well regarded.

Huntingdon Train Station is located just a short walk from the property, providing frequent services to London King’s Cross throughout the day. Additionally, the nearby central bus terminus offers a convenient guided bus service to Cambridge city centre, making this an ideal location for commuters.

FAQ

Tenure: Freehold
Council Tax: Band B
Loft: Boarded
Boiler: Installed 2021
Vendor Onward: Relocating

Please note we have not tested any apparatus, fixtures, fittings, or services.

Interested parties must undertake their own investigation into the working order of

these items. All measurements are approximate, and photographs provided for

guidance only.

Need to sell your property? Please contact us to arrange your free, no obligation

Market Appraisal.

For independent whole of market mortgage advice please call the team to book your

appointment.

View all our properties at harveyrobinson.co.uk

Rated Exceptional in Best Estate Agent Guide 2024 & 2025

British Property Awards 2023, 2024 & 2025 – Gold Winner

5.0 Star Google Review Rating

Floorplans For Cowper Road, Huntingdon, PE29
EPC For Cowper Road, Huntingdon, PE29
Arrange a viewing for Cowper Road, Huntingdon, PE29

For further details on this property please call us on:

Arrange Viewing Buying with a mortgage?