2 2

2 bed House - Sold STC
Central Avenue, Brampton, PE28
Guide Price £290,000

  • Spacious Two Double Bedroom
  • End of Terrace Home
  • Crest Nicholson Build
  • Cloakroom
  • Ensuite to Master
  • Kitchen/Breakfast Room
  • Lounge/Diner with Bi-Folds to Garden
  • Allocated Parking
  • Enclosed Rear Garden

GUIDE PRICE £290,000 - £300,000

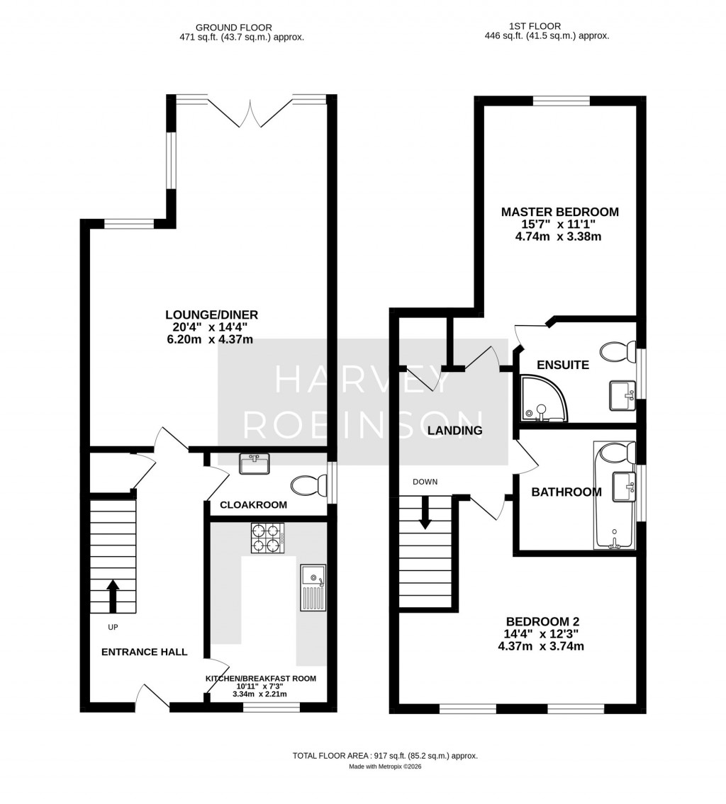
Welcome to this beautifully presented two-bedroom end-of-terrace home, perfectly positioned in the sought-after Brampton Park development and crafted by Crest Nicholson to a high specification. Step inside through the inviting entrance into a spacious hallway that sets the tone for the rest of the property, offering a warm and welcoming first impression. The modern kitchen/breakfast room is thoughtfully designed with sleek built-in appliances, ample storage, and contemporary fittings. The generous lounge/diner is a true highlight of the home, featuring bi-fold doors that allow natural light to flood the space, creating a bright and airy atmosphere for relaxing or hosting family and friends. A convenient cloakroom is located on the ground floor, adding to the practical layout of the property. Upstairs, you will find two spacious double bedrooms, each offering comfort and flexibility for a range of lifestyles. The master bedroom benefits from its own ensuite, while the second bedroom is served by the modern family bathroom. Throughout the home, attention to detail is evident in the quality finishes and thoughtful design choices, ensuring a move-in-ready experience for the new owners. Additional features include allocated parking for added convenience and a practical shed in the enclosed rear garden, perfect for additional storage. This delightful home combines contemporary living with comfort and style, making it an excellent choice for first-time buyers, professionals, or those looking to downsize in a vibrant community. Situated in Brampton Park, residents enjoy easy access to local amenities, transport links, and the welcoming atmosphere of a well-established neighbourhood. Early viewing is highly recommended to appreciate all that this exceptional property has to offer.

LOCATION
Located on the edges of Huntingdon, Brampton is a popular village that has a lot to offer people of all ages. Whether you work in and around London or Cambridge and want an escape from the bustle of city life or would prefer to live in a village that has all of the day-to-day amenities you will ever need, Brampton would be the perfect place to move to.

There are some lovely scenic locations to explore in and around Brampton including Brampton Wood Nature Reserve which is the second largest nature reserve in Cambridgeshire covering 132 hectares and providing ample walking and cycle routes with lots of habitat for a variety of wildlife.

Hinchingbrooke Country Park which covers 150 acres of open grasslands, mature woodland and lakes is located at the other end of the Village. It is a great place to visit for families, nature spotters, dog walkers and those who wish to enjoy the great outdoors. There is a mix of play areas, a cafe, hard-surfaced and muddy paths, secluded woodlands and wildflower meadows.

Brampton has a well-regarded primary school and is within catchment for Hinchingbrooke Secondary School located in Huntingdon. The village has excellent local amenities which include a GP surgery, Vets, Dental Practice, two CO-OP stores, golf course, garden centre, two popular pubs both serving food, tea rooms and local shops including a post office, butchers and chemist. Brampton benefits from fantastic transport links via the A14 and A1 as well as being close to the Huntingdon Train Station which has a direct line straight to London Kings Cross & St Pancras, there are also regular Buses into Huntingdon with the bus stop being within a few minutes' walk of the property.

FAQS
Tenure: Freehold
Council Tax: Band C
Vendor Owned: 8 Years
Chain: No Onward Chain
Management Charge: £650 per annum
Garden: West Facing
Water Meter: Yes
Primary School Catchment: Brampton Primary School
Secondary School Catchment: Hinchingbrooke School
Property Built: 2018
What3Words: ///eggplants.thuds.revamped

These particulars are for guidance only and do not form part of any contract. Descriptions, dimensions and references to condition are given in good faith but should not be relied upon as statements of fact. Measurements and floorplans are approximate. Services, systems and appliances have not been tested and no warranty is given. The property is offered subject to contract and availability. Purchasers must provide identification in accordance with Anti-Money Laundering regulations; a fee of £18 (incl. VAT) per purchaser is payable to Landmark Property services for each electronic verification check. We may receive a referral fee for any of our recommended service providers.

Please note we have not tested any apparatus, fixtures, fittings, or services. Interested parties must undertake their own investigation into the working order of these items. All measurements are approximate, and photographs provided for guidance only.

Need to sell your property? Please contact us to arrange your free, no obligation Market Appraisal.
For independent whole of market mortgage advice please call the team to book your appointment.

View all our properties at harveyrobinson.co.uk

Rated Exceptional in Best Estate Agent Guide 2024 and 2025
British Property Awards 2023, 2024 and 2025 – Gold Winner
British Property Awards 2025 Regional Silver Winner in East of England
4.9 Star Google Review Rating

Floorplans For Central Avenue, Brampton, PE28
EPC For Central Avenue, Brampton, PE28
Arrange a viewing for Central Avenue, Brampton, PE28

For further details on this property please call us on:

Arrange Viewing Buying with a mortgage?