3 1

3 bed House - For Sale
Hall Court, Fen Drayton, CB24
In Excess of £280,000

  • Three Bedrooms
  • Mid Terraced House
  • Generous Rear Garden
  • Open Plan Kitchen Dining Room
  • Modern Kitchen and Bathroom
  • Ground Floor Cloakroom
  • Two Off Road Parking Spaces
  • Perfect for First Time Buyers or Investors
  • Sought After Village Location
  • Viewing Essential

PROPERTY SUMMARY

Harvey Robinson Estate Agents in St Ives are delighted to present For Sale this beautifully presented three bedroom mid-terraced house which offers a fantastic opportunity for first time buyers or investors seeking a modern and spacious home in a sought after village location. Upon entering, you are welcomed by a light and inviting hallway that leads to a convenient ground floor cloakroom, ideal for guests and every-day use. The heart of the home is the open plan kitchen dining room, designed with both style and practicality in mind. The kitchen features contemporary units and ample worktop space making it perfect for family meals or entertaining friends. The adjoining dining area provides a sociable setting for gatherings and every-day life. There is a further conservatory, which is a lovely space to sit and enjoy the warmer months. The spacious living room is tastefully decorated, creating a warm and comfortable space to relax and unwind. Upstairs, the property boasts three well-proportioned bedrooms, each offering flexibility for family living, guest accommodation, or a home office. The modern family bathroom is finished to a high standard, featuring quality fixtures and fittings for a touch of luxury. Additional benefits include two off road parking spaces, ensuring convenient and secure parking for residents and visitors alike, as well as a generous rear garden which boasts privacy. The property is situated within a popular village, renowned for its friendly community atmosphere. With its combination of modern interiors, practical features, and desirable location, this home is perfectly suited to those looking to take their first step on the property ladder or expand their investment portfolio. Viewing is essential to fully appreciate the quality and space on offer.

LOCATION AND AMENITIES 

Located only 12 miles away from the city of Cambridge, Fen Drayton is a quiet countryside parish in Huntingdonshire with a population of under 1000 people. St Ives sits 10 minutes away to the north and Huntingdon 12 minutes to the west, making it easy for local residents to commute to and from work, while providing the perfect escape away from the busier confines of nearby towns and cities. Within the village, there is an active pub, The Three Tuns serving food, as well as a tearoom 'Carriages' which is very popular with local residents. Fen Drayton Primary School is found within the village itself and for secondary age children, Fen Drayton benefits greatly from being within the catchment area for the well regarded Swavesey Village College. A privately run day nursery is found in the centre of the village. In nearby Fenstanton there is a local post office and another primary school, with The Duchess serving as the main pub in the village. The Swan pub and restaurant in Connington is another great alternative and can be found just outside Fen Drayton. St Ives offers a little more nearby, with good quality Italian, Indian, Mediterranean and Chinese restaurants to choose from. It's also where you'll find the One Leisure Indoor Centre, that offers everything from swimming facilities to numerous keep-fit classes. There are numerous options for your weekly or monthly food shop, with Morrisons, Waitrose and Tesco within easy reach. and if you want to head into nearby Cambridge, Huntingdon Road/A14 will take you there in only 25 minutes or make use of the guided bus which stops in the village nature reserve. Fen Drayton Lakes Nature Reserve attracts a delightful variety of wildlife throughout the year, including ducks, geese, otters and swans, and the wetlands run for 25 miles (40km) along the floodplains of the Great Ouse. Numerous recreation activities such cycling, walking, and birdwatching are available. The opening of the new A1307 link road means that you can access Huntingdon train station in approximately 10 minutes, trains from Huntingdon arrive into Kings Cross or St Pancras within an hour.

FAQ’s

Postcode for SatNav: CB24 4TG
What3Words Location: ///spell.armrest.etchings
Council Tax: C
Property Constructed: 1970’s
Current Owners Lived Here: Since 2021
Tenure: Freehold
EPC Rating: C
Sellers Onward Movements: No Forward Chain
Primary School Catchment: Fen Drayton Primary
Secondary School Catchment: Swavesey Village College
Water Metre: Yes
Boiler: Installed 7 years ago
Loft: Partially boarded
Rear Garden Boundaries: Left and Rear
Garden Aspect: West


GENERAL

These particulars are for guidance only and do not form part of any contract. Descriptions, dimensions and references to condition are given in good faith but should not be relied upon as statements of fact. Measurements and floorplans are approximate. Services, systems and appliances have not been tested and no warranty is given. The property is offered subject to contract and availability. Purchasers must provide identification in accordance with Anti-Money Laundering regulations; a fee of £18 (incl. VAT) per purchaser is payable to Landmark Property services for each electronic verification check. We may receive a referral fee for any of our recommended service providers. 

Need to sell your property? Please contact us to arrange your free, no obligation Market Appraisal.
For independent whole of market mortgage advice please call the team to book your appointment.

View all our properties at harveyrobinson.co.uk

Rated Exceptional in Best Estate Agent Guide 2023 & 2024
British Property Awards 2023 & 2024 - Gold Winner
British Property Awards 2024- Silver Winner for the East of England
4.9 Star Google Review Rating

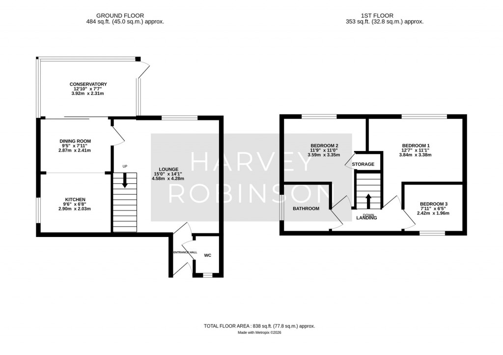
Floorplans For Hall Court, Fen Drayton, CB24
EPC For Hall Court, Fen Drayton, CB24
Arrange a viewing for Hall Court, Fen Drayton, CB24

For further details on this property please call us on:

Download PDF Arrange Viewing Buying with a mortgage?