2 1

2 bed House - Sold STC
Sallowbush Road, Huntingdon, PE29
In Excess of £220,000

  • Two/Three Bedroom End of Terrace Home
  • Good Condition Throughout
  • Versatile Accommodation
  • Generous Enclosed Front and Rear Gardens
  • Fantastic Transport Links
  • Close To Amenities
  • Ideal First Time Purchase or Investment
  • Early Viewing Advised

INTRODUCTION

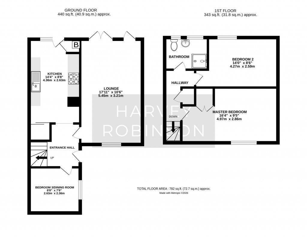
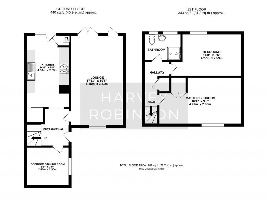
Harvey Robinson Estate Agents are delighted to offer for sale this well presented and versatile two/three-bedroom family home, located in a popular area of Huntingdon. The accommodation comprises an entrance hall, lounge, kitchen, and a third bedroom/family room on the ground floor. To the first floor are two double bedrooms and a shower room. Externally, the property benefits from generous front and rear gardens, making it ideal for families or those seeking flexible living space.

For further information or to arrange a viewing, please contact Harvey Robinson Estate Agents in Huntingdon.

LOCATION

Huntingdon is one of Cambridgeshire’s most sought-after and best-loved market towns. Renowned as the birthplace of Oliver Cromwell, it boasts a wealth of historic buildings in and around the town centre, giving the area a strong sense of character and heritage. With excellent local amenities and scenic riverside walks, Huntingdon is a popular choice for residents of all ages.

The town centre offers a wide selection of well-known High Street brands, including Marks & Spencer, T G Jones, Boots and TK Maxx, alongside a variety of independent shops. There is also an excellent choice of pubs and restaurants, with The Restaurant and Wine Shop at the Old Bridge Hotel being particularly well regarded.

Huntingdon railway station is just a short walk from the property and provides regular direct services to London King’s Cross throughout the day. The central bus station, located nearby, also offers a guided bus service with direct links into Cambridge city centre.

FAQ

Built: 1960’s/1970’s
Council Tax: Band A
Tenure: Freehold
Primary School Catchment: Huntingdon Primary School
Secondary School Catchment: St Peters Secondary School
Anticipated Rental Income: £1100pcm approximateley

Please note we have not tested any apparatus, fixtures, fittings, or services.

Interested parties must undertake their own investigation into the working order of

these items. All measurements are approximate, and photographs provided for

guidance only.

Need to sell your property? Please contact us to arrange your free, no obligation

Market Appraisal.

For independent whole of market mortgage advice please call the team to book your

appointment.

View all our properties at harveyrobinson.co.uk

Rated Exceptional in Best Estate Agent Guide 2024 & 2025

British Property Awards 2023, 2024 & 2025 – Gold Winner

5.0 Star Google Review Rating

Floorplans For Sallowbush Road, Huntingdon, PE29
EPC For Sallowbush Road, Huntingdon, PE29
Arrange a viewing for Sallowbush Road, Huntingdon, PE29

For further details on this property please call us on:

Download PDF Arrange Viewing Buying with a mortgage?